as built drawings definition
As-built drawings are also called red line drawings or registration drawings They show how things look when theyre done. Source DOE G 4301-1 Cost Estimating Guide.
Nave Section Yale Architecture
Changes that were made during construction are shown on as-built drawings.
. They provide any modifications made to the original drawings during the construction process and include an exact rendering of the building and property as it will look upon completion. Ideally all such modifications should be noted on one set of plans set aside for that purposeAt the completion of the project the respective professionals will be. As-built drawings means the plans and schedules showing the locations of the Infrastructure constructed or installed together with the lengths and sizes of materials using for this purpose standard symbols and forms as authorized by the Manager Urban Development.
Sample 1 Sample 2 Sample 3 Based on 14 documents. As-Built Drawings Defined The As-Built Drawings comprise a revised set of construction drawings that are submitted by the contractor when a complete project or individual stages of a project are completed. It is a design delivered to the owner to describe the location and set up of a new infrastructure.
What Does As Built Drawing Mean. This data set is most often used in the context of an addition or renovation. An as-built drawing is a revised drawing developed and submitted by a contractor after a construction project is completed.
At the completion of a project the as-built drawings describe what was actually built. Definition A set of drawings that are marked-up by the contractor building a facility or fabricating a piece of equipment that show how the item or facility was actually built versus the way it was originally designed. As-built data for the building may be missing.
This is a record of the work that a contractor did. Not infrequently the owner or contractor of a building under construction will make field modifications to the original architectural or engineering drawings. The as-is is a record of the measurements and elements of an existing building at some point after construction has been completedoften many years later.
CAD files will be provided by Licensee in a format acceptable to the Licensor. So an As-Built drawing should show the building exactly as it currently is as opposed to a design drawing which shows the intended or proposed layout of the building. This data may be captured for a number of reasons.
This is a. As built drawings are definitive blueprints or architectural designs of a finished construction job. The contractor marks the changes in red to show how the work turned out.
In the architecture and construction industry As-Built refers to a drawing that shows the EXISTING dimensions and conditions of a building space or area. As-built drawing means CAD generated red-lined construction documents showing the Work as constructed prepared by the Licensee and indicating actual locations of utilities and all changes and alternations made to the Work during its design and construction.
Blueprint The Meaning Of Symbols
Construction Project Management Software As Built Drawings Esub
Know The Difference As Built Drawings Record Drawings Measured Drawings Arch Exam Academy
What Are As Built Drawings In Construction Bigrentz
Technical Drawing Elevations And Sections
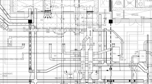
As Built Drawings Getting What You Pay For Hpac Engineering
What Are As Built Drawings In Construction Bigrentz
A Guide To Construction As Built Drawings Webuild Australia
What Are As Built Drawings Find Out About This Essential Part Of Handover Manuals
Museum Exhibition Design Definition Process Of Design Documents Museum Exhibition Design Museum Exhibition Exhibition Design
Generating As Built Drawings As A Project Gets Built Construction Specifier
Sam Architecture Schnepp Renou Social Housing In Clichy Batignolles Divisare Architecture Social Housing Physiotherapy Room
What Is Included In A Set Of Working Drawings Mark Stewart Home




